








Chantilly on the rock - Black Dadji
Nous fabriquons un sol tout à fait original : du parquet de Chantilly en marbre,
En marbre dite Black Dadji, en marbre du Canada qui ressemble à du bois veiné couleur foncée, et en marbre Bouleau de Chine etc...
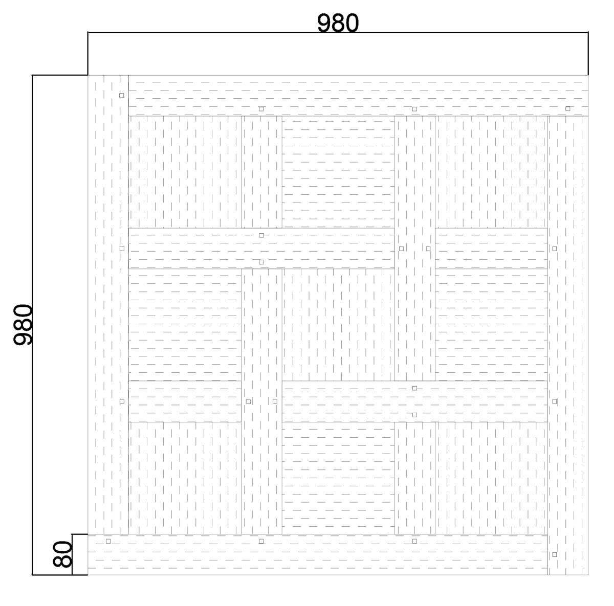
Une plaque de ce sol nécessite 32 mètres linéaires de découpe, et un assemblage tout à la main. Le détail : chaque plaque a des chevilles comme le parquet du 18e siècle.
Dimensions98 (L) × 98 (H) × ? (P) cm

